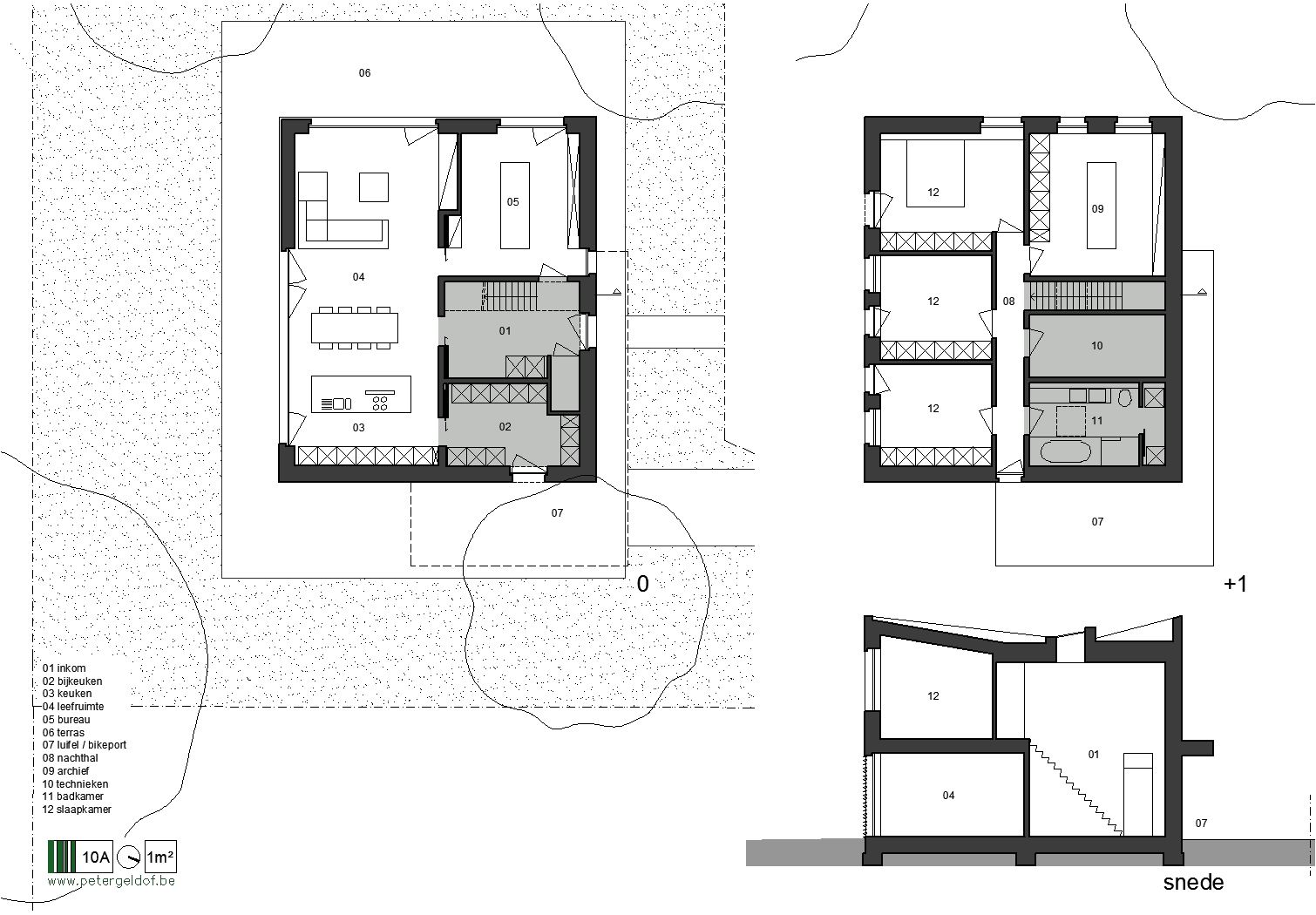
NIEUWBOUW WONING mep

GENTBRUGGE
gecertificeerd PASSIEF
e-peil E16
HOUTSKELETBOUW
opLEVERING april 2012 (START mei 2011)

De compacte en functionele ééngezinswoning is een gecertificeerde passiefwoning in houtskelet met een gesloten voorgevel en open zuidelijke tuingevel. Door de vezelcement-gevelbekleding in verticale groen-zwart-stroken is de woning geïntegreerd in de bosomgeving. Samen met het Plato-hout als gevelaccent aan de luifel en ook voor de verschuifbare zonwering is een strakke en speelse gevel gecomponeerd.

Binnen geeft rubberwood-hout een sober accent aan het houten binnenvolume, naast epoxy-gietvloeren en kurklinoleumvloeren. Verdiepingshoge ramen en schuifdeuren zorgen voor een aangename en lichte ruimtes. Het buitenterras is aangelegd met gerecycleerde rubbertegels.

Een zonnecollector met vacuümbuizen zorgt voor sanitair warm water en verwarming. Verder zorgen douchewarmtewisselaar, wtw-ventilatie, zonnegasboiler, regenwaterrecuperatie, blowerdoortest n=0.30 voor een K-peil van K15 en een E-peil van E16.